The Denso alternator wiki (Part Number DAN968)

Lighting and Electrics Maintenance and Upgrades
Splat
Posts: 472
Joined: Thu Jun 02, 2011 5:12 am

The Denso alternator wiki (Part Number DAN968)

Post by Splat »

Why fit a Denso-type alternator:



(If you want to view any of the photographs in greater detail, either tap or click on them and they will open full-size/full resolution in a new window or tab.)

Fitting the Denso-type alternator has been covered in several posts, and there is now a wealth of information on the forum. But it’s dotted all over the place. So I’m writing this as a sort of “how to wiki”. I’ve also discovered something very significant that I don’t think has been mentioned elsewhere. It’s to do with the wiring. More on that later......

So first of all, why bother? Simple answer: the Lucas-type alternators, as fitted to the later Spridgets, are useless!

My car was built in 2006 and I acquired it in 2010. I don’t know how many alternators the original owner got through. I’ve replaced the alternator twice, and rebuilt the second one with new internals. So call it three for me, in nine years!

The later Spridgets were fitted with a 17ACR type alternator manufactured by Lucas (hardly a byword for reliability back in the day!). Lucas still supply spares for British classics, but they don’t manufacture any of them themselves. All Lucas spares for British classics are manufactured in the Far East. So if you buy a “pattern” 17ACR or a “genuine” Lucas item, they may well have been made by the same manufacturer.

The last 17ACR that I bought WAS a “genuine” Lucas part, newly manufactured somewhere in Asia (FWIW, Lucas part number LRA00226). It lasted for about two years. When it inevitably failed, I rebuilt it using NOS Lucas internals, manufactured in Birmingham in the late ‘60s or ‘70s. The British army held vast stocks of such spares for all of the Landies, Sherpas, and Metro/Maestro staff cars! They’re now readily available on the bay of fleas.

My rebuilt alternator lasted two years.......

So, time to change to a modern alternator, designed (and maybe manufactured) by the Japanese. I’m not sure who on here first used the Denso-type alternator in their Westie; I was first really aware of it through Jan’s posting. He advocates Chinese copies of the Japanese original. The Denso part number is DAN968. I’m not going to post the thousands of alternative part numbers or links to the myriad of suppliers; if you’ve built a car, or are contemplating swapping you alternator, then you’re more than capable of using google!

I actually bought a genuine Denso item. I couldn’t really find any “bargain” Chinese copies here in the UK, and an eBay promotion brought a genuine unit down to about £105.

As an aside, “Denso” is simply shorthand for the Japanese manufacturer Nippon Denso, which is part of the Toyota Group. Unlike Lucas, they rather ARE known for their reliability. And most of their products (my alternator included) are manufactured in Japan.

[attachment=0]901F848E-3695-4353-86BF-F08688A564BC.jpeg[/attachment]
Attachments
Lucas ACR17 alternator
Lucas ACR17 alternator
Last edited by Splat on Mon May 27, 2019 7:20 am, edited 6 times in total.
Splat
Posts: 472
Joined: Thu Jun 02, 2011 5:12 am

Re: The Denso alternator wiki

Post by Splat »

Altering the Denso alternator case to fit it to the A-series:


It’s well known that you have to remove metal from the Denso alternator to allow it to be fitted to the A-series. But I found that I had to remove metal from two places and I was surprised by how much!

Unlike the Lucas alternator, the Denso is much smaller and doesn’t require an aft mounting. Instead, the Denso unit has just two mounting lugs. The main lug is drilled for an M10 bolt. The lower lug is threaded for an M8 screw.

To bring the alternator pulley into line with the fan belt, you will have to thin the main lug by quite a bit. However, out of the box this lug is very thick. So, after modification, the lug remains thick enough to do its job. I simply used a hacksaw to remove the bulk of the lug, and then a flat file to finesse its thickness. This lug is bolted to the corresponding lug on the water pump. The Lucas alternators use a 5/16” bolt here, so I drilled the water pump lug to 9.5mm to accept a 3/8” bolt. (Recall that the lug on the Denso alternator is drilled for an M10 bolt.) I used a bolt of 2” length.

I didn’t take a “before” photograph, but if you click on these “after” photos, you can easily see how much metal has been removed to bring the pulley into line with the fan belt.

[attachment=1]90BD441A-CA65-4DF3-944B-10B68D5E7E03.jpeg[/attachment]

[attachment=0]498CF340-A1D3-426E-B983-BBDA34AD04DF.jpeg[/attachment]
Attachments
498CF340-A1D3-426E-B983-BBDA34AD04DF.jpeg
90BD441A-CA65-4DF3-944B-10B68D5E7E03.jpeg
Splat
Posts: 472
Joined: Thu Jun 02, 2011 5:12 am

Re: The Denso alternator wiki

Post by Splat »

Altering the Denso alternator case to fit it to the A-series:


Like others, I used a turnbuckle-like adjuster to connect the bottom lug to the engine front-plate. And this is where I was forced to remove metal from a second area of the alternator case.

The problem is with the orientation of the two mounting lugs. The two lugs on the Denso alternator are situated opposite each other; ie at 180° apart. The corresponding lugs on the Lucas alternator are only about 120° apart.

Here are the two alternators, viewed head-on:

(The photo of the Denso unit was kindly provided by Jon C. Note that he took the photo with the alternator mounted on a block, though I don’t think that it’s an original MOWOG part :lol: Also, his casting is ever-so subtly different to mine, being a Chinese knock-off sourced from the States.)

[attachment=1]27727CAE-B7D6-40AE-955B-A04241B8C3B1.jpeg[/attachment]

[attachment=0]906DD7B8-B370-44FE-A152-51BDEDA0D9BE.jpeg[/attachment]
Attachments
Lucas
Lucas
Denso
Denso
Last edited by Splat on Mon May 27, 2019 7:31 am, edited 2 times in total.
Splat
Posts: 472
Joined: Thu Jun 02, 2011 5:12 am

Re: The Denso alternator wiki

Post by Splat »

Altering the Denso alternator case to fit it to the A-series:


Again, I failed to take “before” photographs, nor any “after” ones before I fitted the alternator. Trying to show what metal was removed is difficult with the unit fitted. Hopefully these photos are good enough?

One shows the Denso unit in place, with the turnbuckle adjuster fitted and correctly adjusted. The second is a rather crude attempt to show what was removed. The red arrow points to the visible end of one of the four threaded bolts that hold the alternator together. I had to remove all of the metal that this screws in to, making this bolt redundant!

[attachment=1]A1CFCB82-E011-453B-BB1F-630ED1EBF0F4.jpeg[/attachment]

[attachment=0]3226858D-C37B-4D47-ACD1-9BC5C2F130BD.jpeg[/attachment]
Attachments
3226858D-C37B-4D47-ACD1-9BC5C2F130BD.jpeg
A1CFCB82-E011-453B-BB1F-630ED1EBF0F4.jpeg
Splat
Posts: 472
Joined: Thu Jun 02, 2011 5:12 am

Re: The Denso alternator wiki

Post by Splat »

The adjustable tensioner:


I used the chap unearthed by jonjh to supply the tensioner. He trades on eBay as “oilphiluk”. He also has a Facebook page called “Custom Alternator Adjustors”. I couldn’t find what I wanted on eBay, so I contacted him directly. I’m not going to post his email address here, but if you look at his Facebook page, he’s posted a photo of his business card on there, with all of his contact details.

I reckoned that I needed a nominal length of 155mm, so an adjustable length of between 140-170mm. I wanted an M10 fitting at one end and an M8 fitting at the other. He has a stock item that’s M8 at one end and M10 at the other and adjusts between 133-163mm. This has proved to be spot-on. Cost was £27.

The M10 fitting at the engine end allows the retention of the standard 5/16” fitting on the engine front-plate. At the alternator, I used a hex-head M8 screw, thread-locked into the M8-threaded lug. If I need to remove the alternator, I’ll leave the tensioner attached to it via this screw.

[attachment=0]ED726815-0CC9-483F-9F63-05919D627F8E.jpeg[/attachment]
Attachments
ED726815-0CC9-483F-9F63-05919D627F8E.jpeg
Last edited by Splat on Mon May 27, 2019 7:36 am, edited 2 times in total.
Splat
Posts: 472
Joined: Thu Jun 02, 2011 5:12 am

Re: The Denso alternator wiki (Part Number DAN968)

Post by Splat »

Wiring:


So now we come to wiring the alternator in. Firstly, a quick recap of how the Lucas unit is installed.

The Lucas ACR17 alternator is installed with three wires, most usually all incorporated into a three-terminal plug. One thin, 8amp wire (brown with a yellow trace) is for the alternator warning lamp (or “ignition” warning lamp). One thin, 8amp wire (brown, no trace) is to excite the alternator. One thick, 27amp wire (brown, no trace) carries the output from the alternator back to the car.

In the Spridget set-up, both of the brown wires are UNSWITCHED positive feeds from the battery. The battery is connected to one of the terminals of the starter solenoid with battery cable, with an outside diameter of 8-10mm. Also connected to this terminal are several brown wires, crimped into a single connector. Most are thick, 27amp wires. One goes to the ignition switch. Two others go to the fuse box to power systems that remain live when the ignition is off (ie: horn, hazard lights etc.). One is the feed BACK from the alternator to recharge the battery and supply the ignition switch and fuse box when the engine is running. A fifth cable is the smaller 8amp cable that excites the alternator. Once again, all of these cables are brown and all are PERMANENT lives, connected directly to the battery.

(Interestingly, both Jon C.’s car and mine are Jubilee cars with Westfield looms. Jon’s loom is as described above, with the alternator being wired with two 8A wires and one 27A wire. In my car, all five brown, permanent-live wires attached to the starter solenoid were thick, 27A wires, so that both of the brown wires attached to the alternator were the same thickness. It makes no difference to how the system works.)

Although the alternator’s electronics are permanently supplied by the battery, the windings do not become excited until the unit spins. In other words, the Lucas unit draws no current until you turn the key to start the engine.

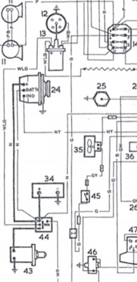
The photo here is of the alternator wiring schematic from the Haynes manual. “N” is the key for “brown”. Note that one of the two brown wires connecting the live terminal of the starter solenoid to the alternator is drawn as a heavy black line, in the same convention as the battery cables. This is a red herring! The battery cables are heavy duty, 8-10mm cables, the alternator cable never was; it was thick-ish, 27A cable as described.

(For whatever reason I just can’t upload a close-up of the relevant area. I’ve tried about a dozen times to zoom in/screen shot/resize. The photos are about 400kB in size, but the site insists that they are over 2MB. If you really want to see the schematic, just click on the photo and it’ll open full-size!)

[attachment=0]DE02CE10-3FB6-4110-B8EE-03280B96CF40.gif[/attachment]
Attachments
DE02CE10-3FB6-4110-B8EE-03280B96CF40.gif
Splat
Posts: 472
Joined: Thu Jun 02, 2011 5:12 am

Re: The Denso alternator wiki (Part Number DAN968)

Post by Splat »

Wiring:


The Denso alternator is wired thus:

Firstly, the feed FROM the alternator back to the car. Because of the potentially much higher output (the DAN 968 puts out 40A, but much higher outputs are available) the standard, brown 27A wire isn’t up to the job. This is therefore replaced with an 8-10mm battery cable. I bought an 18” cable with crimped terminals from Halfords for £4.99. It should be red, but I didn’t like the aesthetics, so used black instead! It runs from a boss on the side of the alternator to the battery terminal of the starter solenoid, becoming the third connection to that terminal.

The other wires are connected to the alternator by a plug. Denso use two different standards: an oval, three pin plug and a T-shaped two pin plug. The DAN 968 unit uses the T plug. These are available for a few pence from Auto Electrical Supplies.

https://www.autoelectricsupplies.co.uk/product_list/258

The alternator/ignition warning lamp feed (8A wire, brown with a yellow trace) is connected to the cross-piece of the “T”. The live feed to excite the alternator (8A wire for what will be about 0.5A of current draw) is connected to the upright of the “T”.

BUT HERE’S THE RUB.........

The exciter must be a SWITCHED live.

The Lucas unit used a permanent-live wire, connected directly to the battery via the starter solenoid terminal. The Lucas unit only drew a current when it was spinning.

The Denso unit uses a switched-live wire. If you connect up one of the brown wires from the starter solenoid, the alternator immediately becomes excited, drawing a current and becoming warm to the touch. This occurs with the ignition off and will drain the battery.

Swapping to a Denso alternator is a popular conversion for a great number of older vehicles and so there is a wealth of “how-to” info on line. And many are accompanied by wiring diagrams. And every one shows or mentions the need for a SWITCHED-live feed to the Denso unit.

What do I mean by a switched-live? Well a feed that only becomes live when the ignition switch is in either ON or START. The wiring convention is that permanent-live wires are brown and switched-live wires are white.

So now BOTH brown wires to the alternator are redundant and a switched-live feed has to be installed. I effected this by firstly unwrapping the loom from the alternator to the scuttle. The permanent-live feeds to the alternator, ignition switch and fuse box are all crimped into a single connector attached to the starter solenoid. I removed the heat-shrink from this connector, cut the two redundant brown wires to the alternator away (being careful to leave the wiring strands into the crimping intact, so that the crimp remains tight) and then reapplied heat-shrink over the three remaining 27A cables.

The switched-live feed to the alternator should probably come from its own dedicated fuse in the fuse box! But that’s an awful lot of work. If I ever replace the entire loom, I’ll think about it! Instead, the loom that you’ve exposed by unwrapping the section from alternator to scuttle containers the white, 8A switched-live feed to the coil. It is an easy job to splice into this (it has plenty of spare capacity to feed both the exciter circuit and the coil) with a length of 8A while cable. This is then paired with the brown/yellow warning lamp cable and fed to the alternator.

And that really is the main reason that I wrote this wiki; to alert people that the pukka Nippon-Denso DAN 968 alternator requires a SWITCHED live feed to avoid killing your battery! I have no idea why this hasn’t been mentioned in all of the previous posts about fitting the Denso-type alternator. Certainly, every reference that I could find elsewhere online stresses that the feed is switched-live. It cost me an admittedly already quite old battery and an equally aged maintenance charger to discover this for myself........

The following photos show the T-plug connector to the alternator, the starter solenoid (with the output terminal to the starter being the rubber cap at the top of the photo, the trigger wire from the ignition switch being the single white/red wire and the lower terminal having the black cable from the alternator coming in on the left, the red cable from the battery coming in in the centre and the crimped terminal with the three remaining 27A brown wires to the ignition switch and fuse box going out on the right) and the wiring diagram that Jon C. unearthed (being one of the less crude/more informative/ easier to interpret of the dozens that can be found on the web!!)
Attachments
F23D33A1-5066-4C8D-AE67-FA0CF6818F97.jpeg
B9C6F60D-72FC-4B03-B76C-D542162B9EBE.jpeg
8DF6626C-173B-45EB-B25D-A545E87D6D2D.jpeg
Westfield 129
Posts: 882
Joined: Sat Jun 04, 2011 4:20 am

Re: The Denso alternator wiki (Part Number DAN968)

Post by Westfield 129 »

A couple of additional thoughts:

Brise in the UK has all the schematics/pin outs for the alternators of all configurations. I just had to find the wiring scheme for a friend installing an ND into his new build W11.

I use a Chinese copy of the ND alternator. If you run a search on the ND part number, you should find a number of accurate replacement alternatives that are about $120 USD less expensive.

For the bottom bracket:

I drill and tap the lower alternator lug to a fractional thread and then order LH/RH threaded rod ends, with LH/RH threaded hex tubing of the appropriate length, or I cut it myself. This saves a few quid, and you get a tension rod that you can adjust with a wrench, or your fingers, without having to remove it from the engine, and it has a precise fit. I like to have only one set of tools for my cars, and I don't build them with metric/fractional engine compartments. That way, I only have to carry one small set of tools. Clearance problems are usually solved with a few washers to space the rod out a little, if necessary.



Wiring:

I have yet to need alternator output wiring of a larger gauge than the used by the old Lucas. I still use the spade connectors for the alternator output, directly to the solenoid/switch mounted on the firewall.

The 12V switched/warning light wiring is not high amps, so I use the same gauge wiring as the plug. Since I use Painless fuse blocks that are labeled, hooking up to the "Alt/Switch" terminal is easy.

Check the pin outs from the alternator so that you don't get the 12V switched power mixed with the warning light. Get them backwards and you kill the warning light circuit. However, when properly re connected, the alternator will work just fine, but the warning light won't. That's why we put volt meters in our instrument panels, right? Don't ask me how I know about this...
jonclancy
Posts: 1020
Joined: Tue Nov 01, 2011 9:30 pm

Re: The Denso alternator wiki (Part Number DAN968)

Post by jonclancy »

Here is a pic of my Denso. It is an original, and is the same as the one here:

https://www.ebay.co.uk/itm/Denso-Kubota ... Swexlc2pSK

Mine has the three pin connector, and the pin-out is shown in the pic.

You can see I had the opposite lug to Splat’s Denso thinned on a mill. I’ve yet to fit mine, but have pretty much all the parts, bar the alternator plug.
Attachments
5013B9C4-6DAD-4FD1-96CC-866A28029575.jpeg
9BDA8EF3-5D29-4669-A7B8-0CE1F00B1E4D.jpeg
C350C3C4-C04A-4B85-B8CC-D62F24817AF6.jpeg
jonclancy
Posts: 1020
Joined: Tue Nov 01, 2011 9:30 pm

Re: The Denso alternator wiki (Part Number DAN968)

Post by jonclancy »

A cropped version of Splat’s wiring diagram.

Troubleshooting link:

http://bronek.org/sailing/zamindar/reso ... ooting.pdf
Attachments
59046CE1-644E-44F7-BF57-7DD3D2CE3B4E.jpeg
Post Reply